Перейти к содержимому
+7 (499) 340-6-777
Москва:
Мякинино
+7 (812) 628 6 777

Санкт-Петербург:
Старая Деревня

 
  • Площадь
    176 м2
  • Этажность
    1,5 этажа
  • Размеры
    14,2х13,4 м
  • Спальни
    4
  • Санузлы
    2

Фасады


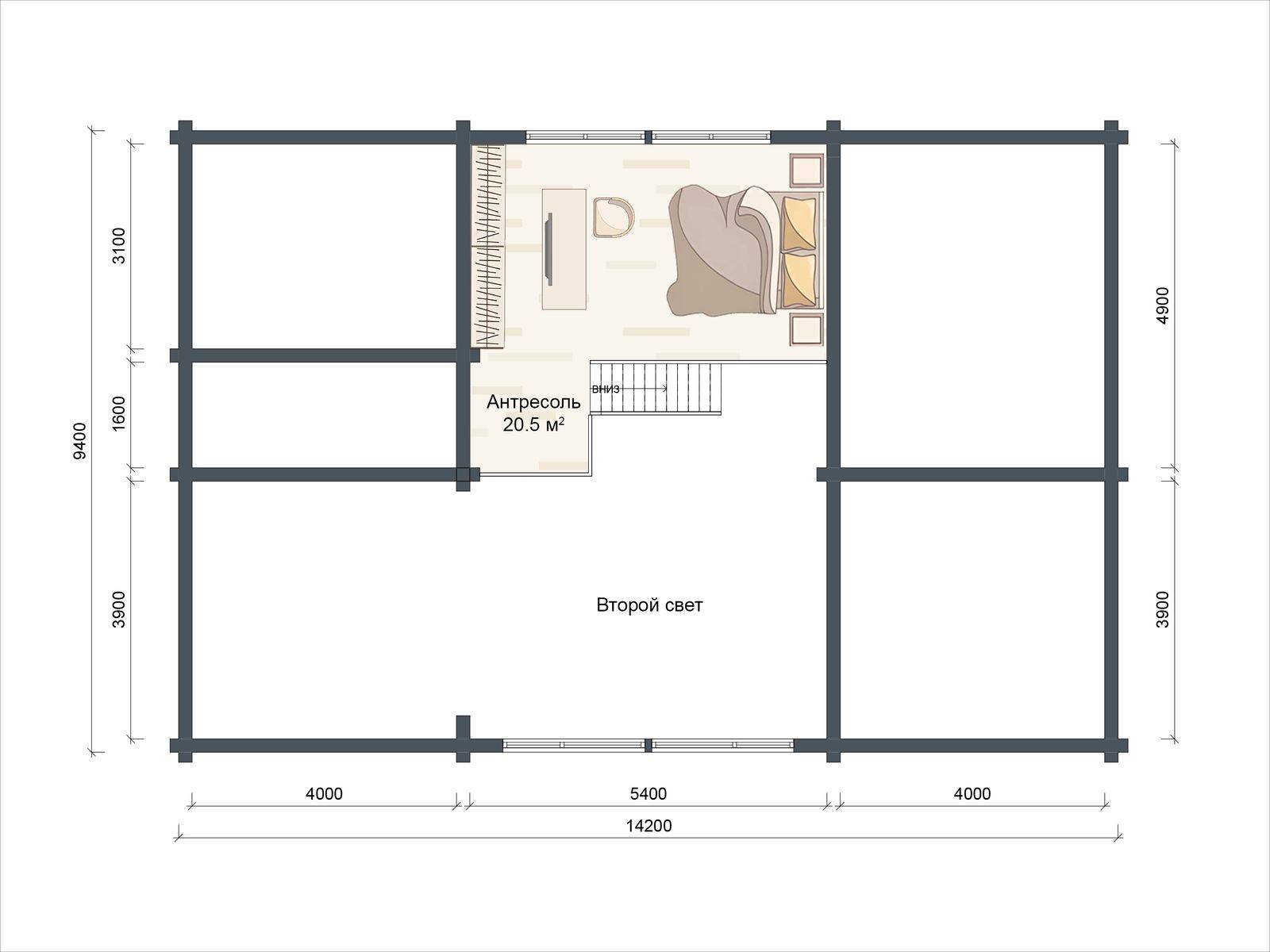
Планировка

Перепланировка и внесение любых изменений в проект - бесплатно!

Гарантия
15 лет
Подробности у нашего менеджера
  • Никаких гвоздей! Используем только березовые нагели.
  • Северный лес и собственное производство - без посредников и переплат.
  • Мы сократили сроки производства домокомплектов из клееного бруса до 30 дней.
  • Соберем данные о состоянии почвы, уровне грунтовых вод и предложим Вам оптимальный тип фундамента. Выезд на пробное бурение - БЕСПЛАТНО!

Базовая комплектация

  • Проектная документация

    Поэтажные планы, фасады, разрезы, 3D виды. План фундамента. План развертки скатов кровли. План раскладки балок цокольного перекрытия. План раскладки балок межэтажного перекрытия. План стропил. Развертки стен.

  • Фундамент и нижний венец

    Выезд на участок заказчика и сбор данных о состоянии почвы и уровне грунтовых вод. Определение типа фундамента. Фундамент заказывается дополнительно, выезд на участок и пробное бурение входит в стоимость.

    Нижний венец исполняется из бруса 150х150 мм, устанавливается по периметру, и одна перемычка посередине (при необходимости, в зависимости от размера и конфигурации дома, могут устанавливаться дополнительные перемычки).

  • Стены и перекрытие

    Выезд на участок заказчика и сбор данных о состоянии почвы и уровне грунтовых вод. Определение типа фундамента. Фундамент заказывается дополнительно, выезд на участок и пробное бурение входит в стоимость.

    Нижний венец исполняется из бруса 150х150 мм, устанавливается по периметру, и одна перемычка посередине (при необходимости, в зависимости от размера и конфигурации дома, могут устанавливаться дополнительные перемычки).

  • Кровля и стропильная система

    Стропила выполняются из бруска 40х150 мм и устанавливаются с шагом не более 60 см. Для перекрытия над вторым этажом используются лаги 40х150 мм и устанавливаются с шагом не более 60 см. Высота конька стропильной системы от пола второго этажа не ниже 3,6 м.

    Под обрешетку укладывается пароизоляция (наноизол или аналог), на обрешетку укладывается временная кровля (рубероид) (по желанию заказчика возможна замена кровельного материала). Выпуски крыши делаются не менее 30 см.

  • Окна, двери и прочее

    Лестница на второй этаж (если присутствует в проекте) исполняется техническая. Входная группа комплектуется ступенями. Дверные и оконные проемы выполняются с ройками. Двери и окна не входят в данную стоимость и заказываются отдельно по желанию заказчика. Наружная и внутренняя отделка не выполняется.

  • Доставка и установка

    Доставка и установка до 50 км. от МКАД и КАД включена в стоимость. Доплата за доставку свыше указанного расстояния 70 руб. за 1км. пробега за каждую единицу автотранспорта.

Бесплатная консультация специалиста
Оставьте заявку или звоните
+7 (499) 340-6-777
Контакты
Москва
  • ул.4-я Мякининская, д.25
  • Метро Мякинино

  • +7 (499) 340-6-777
  • 10:00 - 19:00
  • info@holzbinder.ru
Санкт-Петербург
  • ул. Торфяная дорога д.17
  • Метро Старая Деревня
  • +7 (812) 628-6-777
  • 11:00 - 18:00